Ristrutturazione in partenza!
L’Associazione Il Gabbiano è nuovamente di fronte ad una grande sfida. Come già annunciato, abbiamo deciso di realizzare in via Don Gervasini 1 una seconda comunità alloggio “Casa Gabbiano 2”, per altre dieci persone con disabilità.
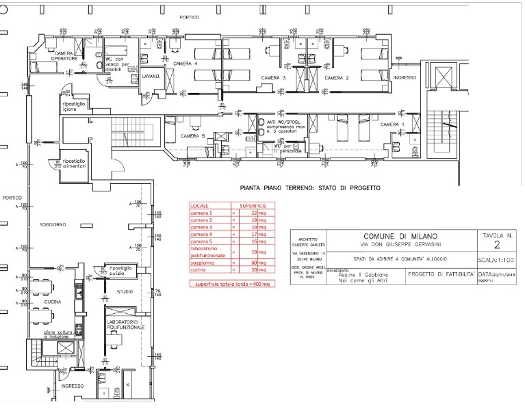
In cosa consiste “Casa Gabbiano2”? Consiste nella riqualificazione di uno spazio, ottenuto da un Bando di affidamento da parte del Comune di Milano, che possa accogliere il bisogno di residenzialità di 10 persone con disabilità e la realizzazione di servizi e interventi sperimentali volti a promuovere la partecipazione attiva dei cittadini. Saranno infatti organizzati anche laboratori e attività gratuite orientate alla formazione, al benessere, all’housing sociale e più in generale all’aggregazione sociale. E’ stata inoltrata la richiesta di inizio lavori al Comune e nel frattempo anche la richiesta di alcune varianti importanti per il contenimento energetico degli ambienti. Nello stesso tempo è stata individuata l’impresa che realizzerà le opere murarie e anche gli impiantisti per le opere di elettricista, idraulico e serramenti.

Abbiamo il problema di essere ancora in attesa di perfezionare il contratto per l’uso del contatore di energia elettrica, importantissimo per dare inizio al cantiere. Cosa che dura purtroppo da tempo, ma ormai dovremmo esserci! Subito dopo, anche a cantiere già operativo faremo un incontro con i residenti del complesso edilizio e con tutti coloro che vorranno intervenire per un brindisi di buona partenza dei lavori che al tempo stesso consentirà di approfondire la reciproca conoscenza e anche i dettagli del progetto “Un Gabbiano per il quartiere”.
Contiamo di portare a compimento le opere in un anno/un anno e mezzo così divise:
1° lotto. Opere edili murarie: Apertura del cantiere, demolizione e costruzioni murature interne ed esterne, assistenza agli impianti . € 89.500 Tempi 20 settimane.
2° lotto. Impianti idraulico ed elettrico
€ 80.000 . Tempi 9 settimane.
3° lotto. Opere edili: sottofondi dei pavimenti, controsoffitti € 61.500 Tempi 10 settimane.
4° lotto. Finiture: Pavimenti, tinteggiature e Serramenti interni ed esterni € 74.500 tempi 13 settimane .
5° lotto . Arredamenti € 36.550 tempi 3 settimane.
Totale € 342.000 a cui occorre sommare l’importo della progettazione e direzione lavori per € 32.900 e Iva al 4%.-10%- 22% (secondo le voci ) pari a € 32.363. per un complessivo di circa € 407.000 .
Come pensiamo di far fronte a questa cifra?
Metà della cifra è già in ns. possesso in quanto dal 2006 ad oggi abbiamo fatto degli accantonamenti finalizzati alla realizzazione di una ulteriore Comunità Alloggio e cioè ”Casa Gabbiano2” ma buona parte è pervenuta dalla Soprintendenza ai beni culturali e paesaggistici che ha contribuito, dopo 5 anni dalla nostra domanda, alle spese da noi sostenute per il restauro della ex Canonica in via Ceriani 3 dove abbiamo, realizzato, grazie anche a voi tutti, un Centro Diurno, una Comunità Alloggio e un Centro Ascolto per persone disabili e loro famiglie. Il tutto operativo e funzionante.
Quindi dobbiamo ricercare circa € 200.000 per far fronte a tutto il resto dell’impegno.
Come pensiamo di raggiungere questa cifra? Mediante richieste all’ente pubblico, e agli enti privati (istituti di credito, aziende, fondazioni, negozianti e risposta a Bandi)
Mediante attività quali partecipazione a feste di via, organizzazione di eventi, spettacoli teatrali e culturali rivolti al pubblico, mediante offerte libere e donazioni.
Cioè con la Campagna “Gocce di pioggia” come negli anni 2000/2006 che ha portato a realizzare dal nulla Casa Gabbiano in via Ceriani 3.
Come sostenerci ed aiutarci? Prima di tutto con la Vostra condivisione morale e secondo con eventuali offerte tenendo conto che non è importante la “dimensione del mattone” ma quello che sarà possibile fare e che viene dal profondo. Infatti tante piccole gocce fanno un ruscello, e poi un fiume e infine il mare.
Lascio le nostre coordinate:
Bonifico Banca Prossima
IBAN IT88N0335901600100000117955
Bonifico Banco Posta
IBAN IT94K0760101600000060369204
c/c postale n 60369204
Grazie per quello che insieme riusciremo sicuramente a fare anche questa volta e cioè dare un futuro ad altre 10 persone con disabilità e realizzare un contesto sociale dove ognuno diviene risorsa per l’altro; così che nessuno venga dimenticato.
Il Presidente
Giacomo Marinini